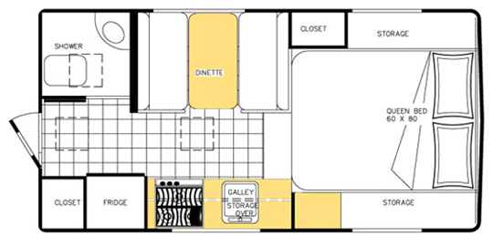
2023 Northern Lite 8’11" Sportsmen Plus Wet Bath TC
CanaDream maintains this website as accurately as possible. Units are Prior Rentals. They may be equipped differently than in website videos and photos. Some of the specifications, features and descriptions may be taken from the manufacturer’s library. Prices listed exclude sales tax, registration, insurance, and delivery fees. Please contact us @ 800-347-7126 for availability as inventory can change rapidly. All calculated payments are an estimate only and do not constitute a commitment that financing, or a specific interest rate or term is available.

Details
Northern Lite Sportsmen 4 Season truck Camper! Equipped with Solar. The lightest true 4-season truck camper series on the market Every Northern Lite camper is built for maximum comfort, no matter what mother nature can throw at you. Book your tour TODAY!Specifications
LED Interior Lighting
Screen Door
Solar Panel, 95 Watt
USB 12 Volt Charging Station
Microwave
Power Rangehood
Stainless Steel Sink
Stove Top Cover - Glass
3-speed Thermostatically Controlled Fantastic Fan
6 gal Hot Water Tank
Hyper Vent Mattress Spacer
Outside Shower
Privacy Drape
Swing Out Assist Handle
U Shaped Dinette Booth
Be our Guest before becoming an Owner
At CanaDream we strive to make it easy for you to find the perfect RV! Enjoy a CanaDream vacation in the model of RV that you are considering purchasing to ensure its fits your lifestyle. If you decide to purchase the RV after your vacation, the value of your Guest experience will be deducted from the purchase price, less taxes!
Enjoy your vacation on us!
Details
- 1" R6 Bloack Foam Insulation
- 12Volt Bathroom Vent
- 30 Amp Power Cord
- 45 amp Converter c/w 3 Stage Battery Charger
- Air Conditioner
- Basement Tray
- Battery Box, Extral Large (Dual)
- Battery Disconnect Switch
- Electric Jacks pre-wired
- Heated Insulated Holding Tanks
- Heki Thermal Skylight
- Hot Water Heater - DSI
- Lithium Solar Regulator
- Marine Headliner
- Mechanical Jacks
- Monitor Panel
- Propane Auto Changeover
- Rear Bumper Step
- Sapele Doors and Trim Packages
- Sapele Veneer Paneling
- Two piece molded fiberglass
| Dinette Slide | False | 
| Arctic Pack | False | 
| Double Pane Windows | False | 
| D V D Player | False | 
| Generator | False | 
| Insulated Holding Tanks | False | 
| Spare Tire | False | 
| Tank Flush System | False | 
CanaDream is certified with: VSA, AMVIC and OMVIC (RV Dealer Id = 10054)
While every reasonable effort is made to ensure the accuracy of this information, we are not responsible for any errors or omissions contained on these pages. Please verify any information in question with CanaDream Inc.
Total sales price includes everything except taxes.
UNITS ONSITE NOW!
Call to book a viewing appointment, toll free at 1-800-347-7126
Request More Information
Request More Information
Don't take our word for it
See what others have to say about their RV vacations in Canada in our MHB MiDi Motorhome
Stay in the Know
Looking for the latest and greatest that CanaDream has to offer? Sign up for our newsletter and receive exclusive Hot Deals before anyone else!



